projects

PORTFOLIO LINK

*For best viewing results, please download pdf

Process work

Skip To:


most recent work

PRELIMINARY SECTIONAL IDEAS

Final diagrams

Each artwork is given at least one alternative viewing opportunity from the main intended one. This illustrates the idea of viewing the “behind the scenes” of a carefully composed piece of work. This aligns with Jeff Wall’s idea of real vs staged.

Section a

second floor

Section B

Morning Cleaning, Mies Van der Rohe Foundation, Barcelona‍ ‍1999

The Storyteller 1986

DEsign goals

-Relay back to the idea of “staged views”

-Create at least 1 alternative view for each artwork

-Utilize the glowing white light boxes to draw intrigue from the street

-Create controlled reveals

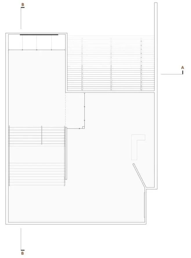
first floor

JEFF WALL EXHIBIT

2.5 week exercise exploring the museum experience for a chosen artist

AA Sudden Gust of Wind 1993

Parent Child 2018

IDEA #2

IDEA #3

Creating Vertical Connections and continuity

Using an atrium and a continuous brick veneer wall creates continuity between the library floors. For the final design, a very similar strategy was used.

Conceptual work

Mount Mitchell Pavillion

The goal with this project was to draw from the surrounding landscape to influence the pavilion’s form. During site visits, personal photos were used to create collages to emulate the “feeling” of the project design goal. By combining site photos with design intentions, these mark the beginning of the conceptual design phase for this assignment.

chosen concept idea

The idea of incorporating a windmill form ultimately became the chosen option to develop further. From there, ideas of how to “control views” and create “spatial tension” developed a more well-rounded concept.

Design Goals

-create a form that blends into the existing street facades

-create spaces that cater to each age group of the Junction City Community.

-highlight not hide the books

-create clear distinctions between reading areas versus more modern library needs

Spatial Organization

With Rhino, I utilized 2-D boxes to organize the required program through plans and section view. The following is the final chosen spatial organization.

1.

Basement Level = Adult Stacks, Independent Study Spaces

Main Level = Children Stacks, Outdoor Space, Community Emphasis

Second Level = Teen Stacks, Public Speaking, Group Spaces

2.

3.

JUnCTION CITY PUBLIC LIBRARY

Questions from Site Visit: How do I combine elements of the historical nature of Junction City Main Street while creating something new that draws pedestrians inside?

form exploration

Concept models explored ways in which a windmill’s form could be interpreted.

Form finding

Something that went through many different iterations was the form. The idea of making two modular structures on the ends to act almost as “bookends” ended up being used. Through iterations, the left form eventually became emphasized even more. The main issue was creating and justifying the roof structure for the center mass. The clerestories in these images were eventually eliminated due to the harsh lighting effects, and I opted for a much simpler roof form later on.

** see final projects in my portfolio —>

Animation

  • Rhino, Twinmotion, Premiere Pro